SmartSpace Einfamilienhäuser
von SCHWABENHAUS

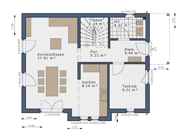
SmartSpace – das clevere Einfamilienhausprogramm von Schwabenhaus Mehr Raum. Mehr Klarheit. Mehr Zuhause. Mit SmartSpace bietet Schwabenhaus ein Hausprogramm, das modernes Wohnen neu denkt. 36 individuell planbare Entwürfe mit Wohnflächen zwischen ca. 103 und 140 Quadratmetern verbinden funktionale Grundrisse mit zeitgemäßer Architektur – für Menschen, die Wert auf Qualität, Effizienz und Alltagstauglichkeit legen. Das Erdgeschoss überzeugt durch offene Wohn- und Essbereiche, Gäste-WC, Garderobe und Technikraum – intelligent geplant für ein harmonisches Miteinander. Im Obergeschoss schaffen Schlafzimmer, Badezimmer und flexibel nutzbare Räume Platz für Familie, Homeoffice oder Gäste. SmartSpace steht für Klarheit und Komfort – und für die bewährte Schwabenhaus-Qualität, auf die Sie sich verlassen können. Für wen ist SmartSpace gemacht? SmartSpace ist ideal für alle, die sich ein durchdachtes Zuhause ohne Umwege wünschen. Für Paare, die den nächsten Schritt wagen. Für Familien, die Wert auf Funktion und Wohlgefühl legen. Für alle, die modern, effizient und vorausschauend bauen wollen – ohne auf Flexibilität zu verzichten. SmartSpace macht modernes Wohnen erschwinglich, ohne auf Qualität oder Ausstattung zu verzichten. Die vielen Entwürfe bieten Spielraum für persönliche Vorstellungen – und mit der modularen Planung wird aus einem durchdachten Haus schnell Ihr ganz eigenes Zuhause. Preis-Information: Preise beziehen sich auf das zugrundeliegende Basishaus SmartSpace-E-120 in der Ausbau-Stufe "Fast-Vollendet", Effizienzhaus-55, inkl. Bodenplatte, inkl. All-Inklusive-Leistungspaket, Bilder und Abbildungen können aufpreispflichtige Extras zeigen. Preislisten Stand 08/25